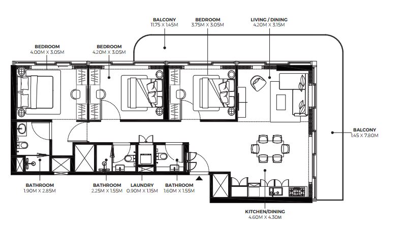
In the heart of Al Furjan, Raffi offers a serene retreat where modern living meets effortless convenience. It presents exquisite studios and 1, 2, and 3-bedroom residences, crafted with inspired interiors and meticulously designed layouts for ultimate comfort.
Residents enjoy unmatched accessibility, with Ibn Battuta Mall and Jafza just 7 minutes away, and Al Maktoum International Airport (DWC) reachable in 15 minutes. Seamlessly combining vibrant city connectivity with the tranquility of a refined community, Raffi embodies contemporary elegance and sophisticated urban living.