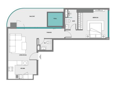
Boulevard Heights – Modern Luxury in Dubai Land Residence Complex
Nestled within the Dubai Land Residence Complex, Boulevard Heights features wide boulevards, open green spaces, and a seamless balance between connectivity and tranquility. Ideally located between Sheikh Mohammed Bin Zayed Road, Emirates Road, and Dubai–Al Ain Road, residents enjoy easy access to top universities, shopping, and social destinations. Boulevard Heights offers residences ranging from luxurious studios to 2-bedroom apartments, each designed for elegant family living and complemented by private pools, fitness zones, and family-friendly amenities. Open layouts, premium finishes, and thoughtful detailing create a living experience that combines comfort, style, and understated luxury.
With unrivaled connectivity, it’s just 5–10 minutes to Global Village, 15–20 minutes to Dubai Airport, and 20–25 minutes to Burj Khalifa, making city life effortless. Boasting high investment potential, Golden Visa eligibility, and flexible payment plans, Boulevard Heights is a refined sanctuary where resort-style living meets modern urban convenience.